Logo l'équipe immobilière'

Avis clients - indice de satisfaction  9,6/10
  90 avis

L'EQUIPE IMMOBILIERE
071/960.444
Chaussée de Thuin 423 Boite 1 - 6150 Anderlues


Réf. : 7641934  Appartement 2CH avec balcon au Boulevard Tirou à 6000 Charleroi
CHARLEROI - Boulevard Tirou 34/6 : VISITE VIRTUELLE DISPONIBLE : https://view.ricoh360.com/1ab4bf0f-a573-4fe5-a094-3802fb13bf87 .
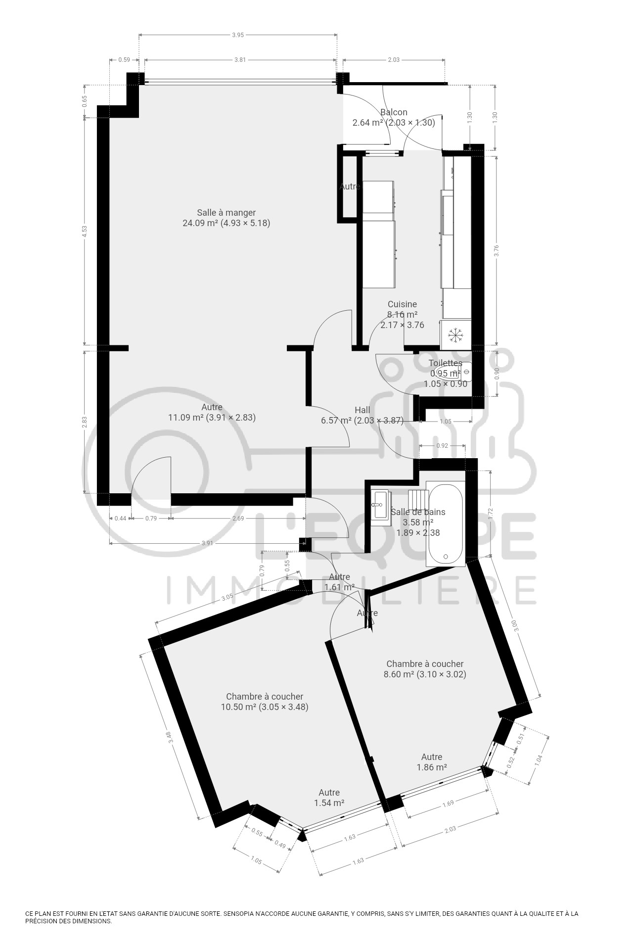
Cet appartement situé au 6ᵉ et dernier étage est proche de toutes les commodités. Il se compose comme suit : un hall d’entrée, un agréable living de 35 m², une cuisine séparée, un WC, un hall de nuit, deux chambres et une salle de bain. Le bien dispose également d’un balcon, accessible depuis le living et la cuisine, ainsi que d’une cave. Techniques : chauffage central au gaz, compteur électrique individuel, compteurs de passage pour l’eau et le gaz, boiler au gaz, ascenseur. Provisions de ± 220 €/mois pour les charges communes et consommations privatives. PEB: G - 529 kWh/m2.an. CU: 20260402026908. Faire offre à partir de 129.000 € sous réserve d’acceptation des propriétaires. Pour plus d'informations, n'hésitez pas à nous contacter au 071/960.444 ou info@lequipeimmobiliere.be
Visite Virtuelle

Photos
Aspects Financiers et légaux
Offre à partir de : 129 000 €
Revenu cadastral : 1105 €
Etat du bien : bon état
Disponible : à l'acte
Description extérieure
Année de construction : 1958
Etage de l'appartement :2
Documents associés au bien
Certificats et attestations
PEB spécifique : 529.00 kWh/m².an
PEB total : 51986 kWh/an
CO2 : 96 kg C02/m².an
Validité certificat : 04/2036
Numéro du certificat : 20260402026908
Attestation de sol réalisée (BDES)
Facilités
Raccordements : égout électricité gaz eau
Description intérieure
Surface habitable : 77.00 m²
Séjour : 35.70 m²
Cuisine : 8.70 m²
Chambre 1 : 11.10 m²
Chambre 2 : 9.30 m²
1 salle(s) de bains
Boulevard Joseph Tirou 34 - 6000 Charleroi

Cliquez pour calculer vos frais d'acte de crédit et /ou vos frais d'acte d'achat

 
---------- Document informatif et non contractuel ----------
Le positionnement est donné à titre indicatif et n'est absolument pas garanti



Imprimer

Contacter l'agence